Kaplama İş Merkezi

Kaplama İş Merkezi

Kaplama İş Merkezi projemize ait tüm detaylara bu sayfadan erişebilirsiniz. Kat planlarını, daire ve yapı görsellerini, daire ve binaya ait özellikleri bulabileceğiniz bu sayfada, bina yerini de navigasyon özellikli harita sayesinde kolaylıkla bulabilirsiniz.

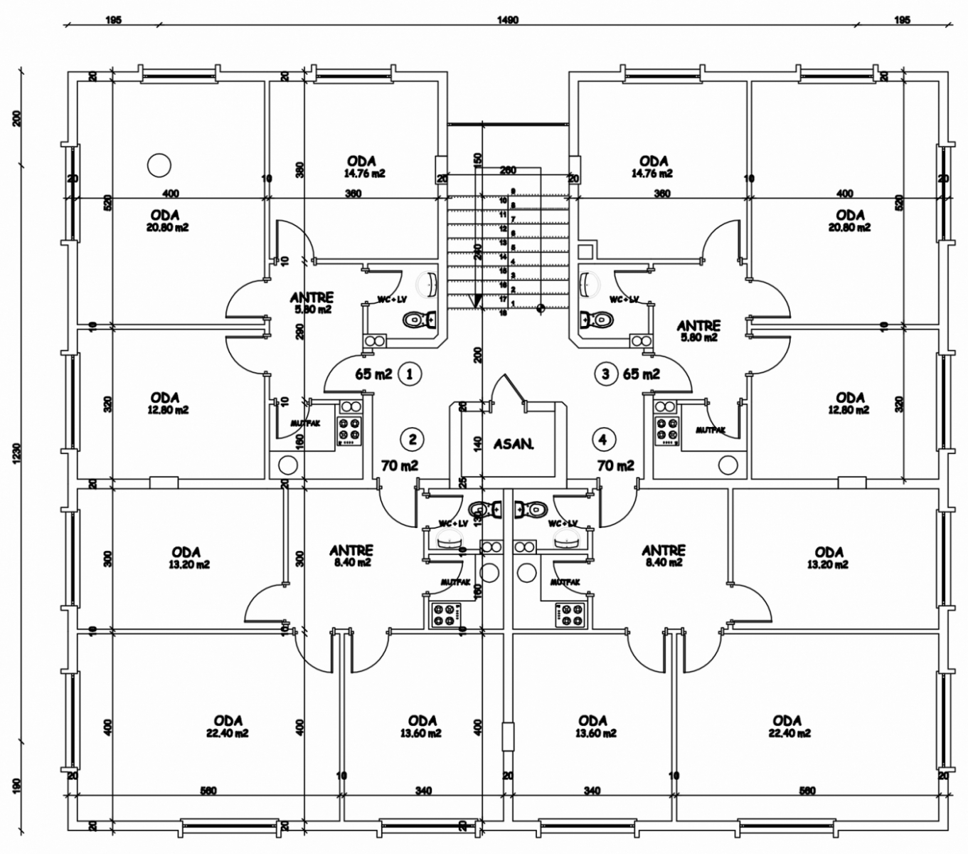
Proje Kat Planları

Daire Sayısı

20

Oda Sayısı

2+1

Daire m²

75 m²

İnşaat Alanı

2600 m²

Adres

İncilipınar Mh. 36007. Sk. No:1 Şehitkâmil/Gaziantep